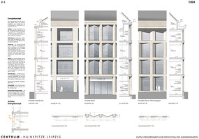
Hainspitze Leipzig

Ergebnis

1. Rang

Ortner + Ortner, Berlin

3. Rang

RKW Architektur + Städtebau, Düsseldorf

3. Rang

KSG Kister Scheithauer Gross, Leipzig

3. Rang

Eike Becker, Berlin


Weitere Arbeiten

Architekten Vahjen + Partner, Braunschweig

msp architekten, Dortmund

Woltereck Fitzner Architekten, Leipzig

kadawittfeldarchitektur, Aachen

>>