Fachhochschule Köln - IWZ

Ergebnis

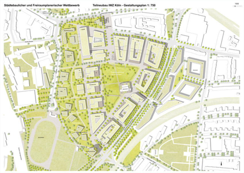
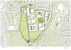
1. Preis

kister scheithauer gross architekten und stadtplaner GmbH (Köln/Deutschland)
Atelier LOIDL Landschaftsarchitekten (Berlin/Deutschland)

2. Preis

Ferdinand Heide Architekt (Frankfurt/Deutschland)
TOPOS Stadtplanung Landschaftsplanung Stadtforschung (Berlin/Deutschland)

3. Preis

Schuster Architekten Düsseldorf  (Düsseldorf/Deutschland)
nsp landschaftsarchitekten stadtplaner (Hannover/Deutschland)

Anerkennung

ARGE Skt umbaukultur GbR (Bonn/Deutschland)
Latz+Partner Landschaftsarchitekten Stadtplaner (Kranzberg/Deutschland)
Architekturbüro Schommer (Bonn/Deutschland)

Anerkennung

Schilling Planung GmbH (Köln/Deutschland)
Landschaft planen+bauen Berlin GmbH (Berlin/Deutschland)


Weitere Arbeiten

ARGE Riegler Riewe Architekten ZT-Ges.m.b.H. (Graz/Österreich)
lad+ landschaftsarchitekten (Hannover/Deutschland)
yellow z urbanism architecture zürich berlin (Berlin/Deutschland)

Behles & Jochimsen Architekten GmbH (Berlin/Deutschland)
office regina poly (Berlin/Deutschland)

Heinle, Wischer  und Partner GbR (Köln/Deutschland)
EGL Entwicklung und Gestaltung von Landschaft GmbH (Düsseldorf/Deutschland)

Molestina Architekten GmbH (Köln/Deutschland)
FSWLA Landschaftsarchitektur GmbH (Düsseldorf/Deutschland)

h4a Gessert + Randecker Architekten (Stuttgart/Deutschland)
Gesswein Landschaftsarchitekten (Ostfildern/Deutschland)

Kaspar Kraemer Architekten GbR (Köln/Deutschland)
WKM Landschaftsarchitekten GbR (Meerbusch/Deutschland)

Schaltraum Architektur GbR (Hamburg/Deutschland)
Bendfeldt Hermann Franke Landschaftsarchitekten GbR (Schwerin/Deutschland)

Nickl & Partner Architekten AG (München/Deutschland)
Rainer Schmidt Landschaftsarchitekten GmbH (München/Deutschland)

Lepel & Lepel GbR (Köln/Deutschland)
GTL Gnüchtel Triebswetter Landschaftsarchitekten GbR (Düsseldorf/Deutschland)
Matern und Wäschle Architekten GbR (Paderborn/Deutschland)

rheinflügel severin (Düsseldorf/Deutschland)
el:ch landschaftsarchitekten GbR (München/Deutschland)

>>