News

Modellquartier 2: Das beste Städtebaukonzept mit zentralem Park kommt aus Wien!

Die große Resonanz von rund 150 Gästen zur Münsteraner Bürgerschafts-Preview am Abend vor dem Preisgericht nach RPW überraschte auch die Ausloberin.

In einem angenehmen Abendformat und nach der neutralen und zudem anonymen Präsentation der 5 besten Beiträge der Phase 2 des Wettbewerbs durch Jörg Faltin, FALTIN+SATTLER wurde an den Plänen und Modellen über guten Städtebau diskutiert.

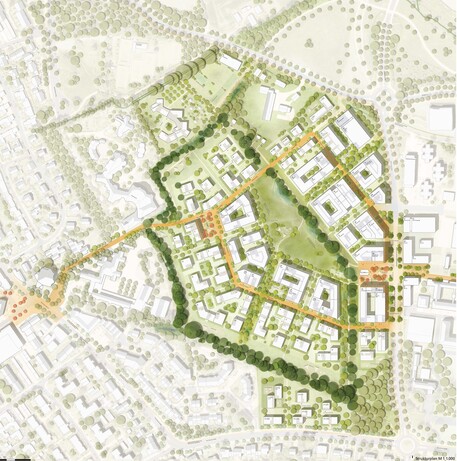
Zu Freude aller Beteiligten zeigte sich am Vorabend des Preisgerichts eine äußerst positive Resonanz für die vielfältigen Wettbewerbsbeiträge, insbesondere für die Arbeit mit der Tarnzahl 1001 mit dem herausragenden Konzept eines grünen und eines urbanen Rings mit einem integrierten verbindenden Park im Herzen des neuen Quartiers. Dieser Ansatz überzeugt auch die Jury in der Sitzung am folgenden Tag!

Besser hätte es für den vorbildlichen Weg der Münsteraner Modellquartiere und der integrierten Planungs- und Diskussionskultur nicht laufen können! Dank an alle Beteiligten und insbesondere an die Gewinner aus Wiener: Albert Wimmer ZT-GmbH, Stadtplanung, mit Knollconsult Umweltplanung ZT GmbH, Landschaftsarchitektur, und ZT-Büro Zeleny Infrastrukturplanung, Entwässerungsplanung!

 

© Albert Wimmer ZT-GmbH

© FALTIN+SATTLER

>>